产品快速通道
当前栏目名
您当前的位置:永利最大(官方)网站 > 产品中心 > 鼓风机展厅真空

- 产品参数:
- 产品型号: null
- 额定功率:null
- 电压:null
- 风量:null
- 风压:null
- 转速/极数:null
- 安装方式:null
详细参数
借鉴先进国家研制设计技术的精华, 采用CAD CAM管理,运用先进的设备和检测手段,实施先进的科学工业设计, 成功开发出多种新型防堵组合式,防堵平行式,耐压型,外装耐温耐压型,定量型等特制产品.其中快开门式清洗阀具有世界先进水平。质量取得顾客的信赖,畅销全国各地,
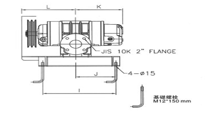
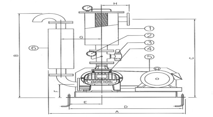
真空鲁氏鼓风机性能参数:风量:2.47~4.99m3/min 压力:-0.1~-0.45Kg/cm2 功率:3~7.5HP
真空鲁氏鼓风机性能特点:较低的能源损耗∶风机的设计能减少逆流对转子的压力,相对也能减少对能源的损耗。较低的噪音∶压力脉冲是主要的噪声源,风机能有效降低噪音达五分贝。轴承寿命延长∶由于叶轮传递的震动减少,得已延长轴承受命达20%。
真空鲁氏鼓风机技术特性:主要是涉及真空式鼓风机之结构,使叶轮相对于内缸里之轴心位置不因外力影响而变动者,广泛应用于塑料机械,木工机械,造纸机械,并于行业领先!
真空鲁氏鼓风机的风量调节:
1、风机可以通过调整电机的皮带轮大小来调节鼓风机的风量大小(罗茨风机的风压是不受风机转速限制的,不论转速变化如何其风压可以保持不变。而风量则与风机转速成正比的,即Q=KN;Q:表示风量;N:表示风机转速;K:为系数,
2、风机可以通过变频器来调节鼓风机风量大小。
真空鲁氏鼓风机用途:粉粒输送、造纸厂脱水、输送纸张、吸料、塑料辅机、木工雕刻、印刷包装机械, 纺织机械,造纸设备等领域。






粤ICP备11012611号
